GW Geiseltaler Wohnungsgesellschaft mbH, Eduard-Dörge-Platz 7, 06242 Braunsbedra

Schöner Wohnen in Braunsbedra - Unsere Wohnungsangebote

Drucken

2-Raum-Wohnung mit Balkon - Wohnen im Geiseltal (12579)

 
Merseburger Straße 32 | 06242 Braunsbedra Deutschland Braunsbedra
Etage:
2. OG
Etagenanzahl:
4
Kaltmiete:
302,00 €
Warmmiete:
484,00 €
Nebenkosten:
91,00 €
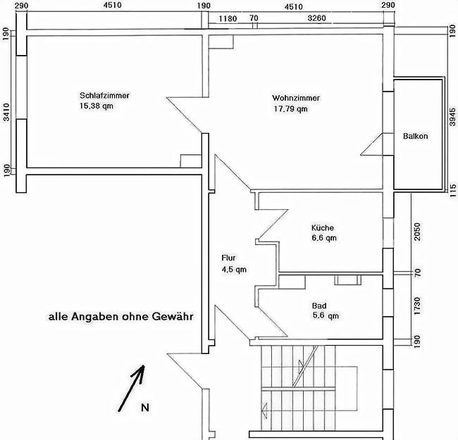
Wohnfläche ca.:
50.05 m²
Zimmer:
2
Schlafzimmer:
1
Badezimmer:
1

Objektinformationen

Kaltmiete:
302,00 €
Warmmiete:
484,00 €
Nebenkosten:
91,00 €
Heizkosten:
in Nebenkosten enthalten
Heizkosten:
91,00 €
Kaution:
604,00 €
Wohnfläche ca.:
50,05 m²
Zimmer:
2,0
Schlafzimmer:
1
Badezimmer:
1
Balkone:
1

Ausstattung

Badewanne
Fliesenboden
Linoleumboden
Fernwärme

Zustand

Baujahr:
1965
Energieeffizienzklasse
C

Energiepass

Energieausweis Energieausweis
Energiepass Art:
Verbrauch
gültig bis:
06-2028
Verbrauchkennwert:
93.00 kWh/(m²a)
mit Warmwasser
Primärenergieträger:
Fernwärme
Energieeffizienzklasse:
C

Verwaltung

verfügbar ab
01.09.2026

Objektbeschreibung

Braunsbedra im Geiseltal ist eine attraktive Stadt in Sachsen-Anhalt, die sich durch ihre Lage am Geiseltalsee und ihre vielfältigen Vorzüge auszeichnet:
- Braunsbedra liegt malerisch am Ufer des Geiseltalsees, einem der größten künstlichen Seen Deutschlands. Dieser See bietet nicht nur eine atemberaubende Kulisse, sondern auch zahlreiche Möglichkeiten für Wassersport, Angeln und Erholung.
- Die Umgebung von Braunsbedra ist von grünen Wäldern sowie drei weiteren Seen (Hasse See, Großkaynaer See & Runstedter See) umgeben, die zum Wandern, Radfahren und Picknicken einladen.
- Braunsbedra liegt verkehrsgünstig an der Autobahn A38, was den Zugang zu größeren Städten wie Halle (Saale) und Leipzig erleichtert. Auch öffentliche Verkehrsmittel sind gut ausgebaut.
- Die Stadt bietet eine Vielzahl von Einkaufsmöglichkeiten und Restaurants, um den täglichen Bedarf zu decken und kulinarische Vielfalt zu genießen.
- Braunsbedra verfügt über Kindergärten, Grundschulen und weiterführende Schulen.
- Die Stadt hat eine aktive Kultur- und Vereinsszene mit Veranstaltungen die das ganze Jahr über stattfinden und das Gemeinschaftsleben bereichern.

Ausstattung

Bad mit Badewanne, Balkon, PKW-Stellplatz möglich, wenn verfügbar
WIR SANIEREN FÜR SIE!!!!!!!

Auf Wunsch setzen wir Ihre neue Wohnung zusätzlich auch malermäßig instand (Grundmiete zzgl. 0,50 €/m²/Monat)

Ihre neue Wohnung bekommt:
- ein modernes Bad
- eine Küche mit Fliesenspiegel
- einen modernen PVC-Belag in allen Räumen
- PKW-Stellplatz möglich, wenn verfügbar

Gerne stehen wir Ihnen für Fragen und einen Besichtigungstermin zur Verfügung.

Ihr Ansprechpartner

GW Geiseltaler Wohnungsgesellschaft mbH
Eduard-Dörge-Platz 7
06242 Braunsbedra
Deutschland
E-Mail (zentral)
Diese E-Mail-Adresse ist vor Spambots geschützt! Zur Anzeige muss JavaScript eingeschaltet sein.
Telefon
034633 9099-99

Kontaktformular

Free Joomla templates by Ltheme