GW Geiseltaler Wohnungsgesellschaft mbH, Eduard-Dörge-Platz 7, 06242 Braunsbedra

Drucken

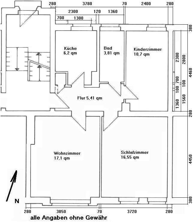
Wohnen im Geiseltal - 3-Raum-Wohnung (12593)

 
Herweghstraße 3 | 06242 Braunsbedra Deutschland Braunsbedra
Etage:
2. OG
Etagenanzahl:
3
Kaltmiete:
358,00 €
Warmmiete:
574,00 €
Nebenkosten:
108,00 €
Wohnfläche ca.:
59.6 m²
Zimmer:
3
Schlafzimmer:
2
Badezimmer:
1

Objektinformationen

Kaltmiete:
358,00 €
Warmmiete:
574,00 €
Nebenkosten:
108,00 €
Heizkosten:
108,00 €
Kaution:
716,00 €
Wohnfläche ca.:
59,60 m²
Zimmer:
3,0
Schlafzimmer:
2
Badezimmer:
1

Ausstattung

Badewanne
Fliesenboden
Linoleumboden
Fernwärme

Zustand

Baujahr:
1956
Energieeffizienzklasse
C

Energiepass

Energieausweis Energieausweis
Energiepass Art:
Verbrauch
gültig bis:
06-2028
Verbrauchkennwert:
99.00 kWh/(m²a)
mit Warmwasser
Primärenergieträger:
Fernwärme
Energieeffizienzklasse:
C

Verwaltung

verfügbar ab
01.05.2026

Objektbeschreibung

Braunsbedra im Geiseltal ist eine attraktive Stadt in Sachsen-Anhalt, die sich durch ihre Lage am Geiseltalsee und ihre vielfältigen Vorzüge auszeichnet:
- Braunsbedra liegt malerisch am Ufer des Geiseltalsees, einem der größten künstlichen Seen Deutschlands. Dieser See bietet nicht nur eine atemberaubende Kulisse, sondern auch zahlreiche Möglichkeiten für Wassersport, Angeln und Erholung.
- Die Umgebung von Braunsbedra ist von grünen Wäldern sowie drei weiteren Seen (Hasse See, Großkaynaer See & Runstedter See) umgeben, die zum Wandern, Radfahren und Picknicken einladen.
- Braunsbedra liegt verkehrsgünstig an der Autobahn A38, was den Zugang zu größeren Städten wie Halle (Saale) und Leipzig erleichtert. Auch öffentliche Verkehrsmittel sind gut ausgebaut.
- Die Stadt bietet eine Vielzahl von Einkaufsmöglichkeiten und Restaurants, um den täglichen Bedarf zu decken und kulinarische Vielfalt zu genießen.
- Braunsbedra verfügt über Kindergärten, Grundschulen und eine weiterführende Schule.

Ausstattung

Bad mit Badewanne, PKW-Stellplatz möglich, wenn verfügbar
Die sanierte 3-Raum-Wohnung besitzt einen ansprechenden Grundriss und befindet sich im 2. OG eines Mehrfamilienhauses.
Sie besitzt folgende Ausstattungsmerkmale:
- tapeziert mit Raufasertapete
- Highspeed-Internet (bis zu 1000 Mbit/s) verfügbar
- modernes Tageslichtbad mit Wanne sowie Handtuchheizkörper
- Küche mit Fliesenspiegel
- moderner PVC-Belag in allen Räumen
- PKW-Stellplatz möglich, wenn verfügbar

Die Wohnung bietet damit beste Voraussetzungen für ein komfortables Zuhause.
Gerne stehen wir Ihnen für Fragen und einen Besichtigungstermin zur Verfügung.

Ihr Ansprechpartner

GW Geiseltaler Wohnungsgesellschaft mbH
Eduard-Dörge-Platz 7
06242 Braunsbedra
Deutschland
E-Mail (zentral)
Diese E-Mail-Adresse ist vor Spambots geschützt! Zur Anzeige muss JavaScript eingeschaltet sein.
Telefon
034633 9099-99

Kontaktformular

Free Joomla templates by Ltheme